Italiano
1 Camere 257 m2
Caratteristiche principali
Codice
V000487
Prezzo
585.000 EUR
Classe
A4
Locali
8
Altre caratteristiche e accessori
Stato Immobile
Prossima Realizzazione
Grado
Signorile
Posizione
Centro
Panorama
Vista Aperta
Orientamento
Nord Ovest Sud Est
Lati Liberi
4
Giardino
Comune
Arredi
Non Arredato
Tipo Soggiorno
Soggiorno
Tipo Cucina
Abitabile
Riscaldamento
Autonomo
Tipo Riscaldam.
Pompa di Calore
Tipo Impianto
Pavimento
Fonte Energetica
Fotovoltaico
Acqua Calda
Autonoma
Raffrescamento
Split
Infissi
PVC Triplo Vetro
Serramenti
Nuovo
Persiana
Tapparella PVC
Accessori
Aria Condizionata, Cancello Elettrico, Fibra Ottica, Impianto Fotovoltaico, Impianto Satellitare, Parco Condominiale, Passaggio Automobilistico, Passaggio Pedonale, Porta Blindata, Ripostiglio, Tapparelle Elettriche, Tripli Vetri, Video Citofono, Zanzariere
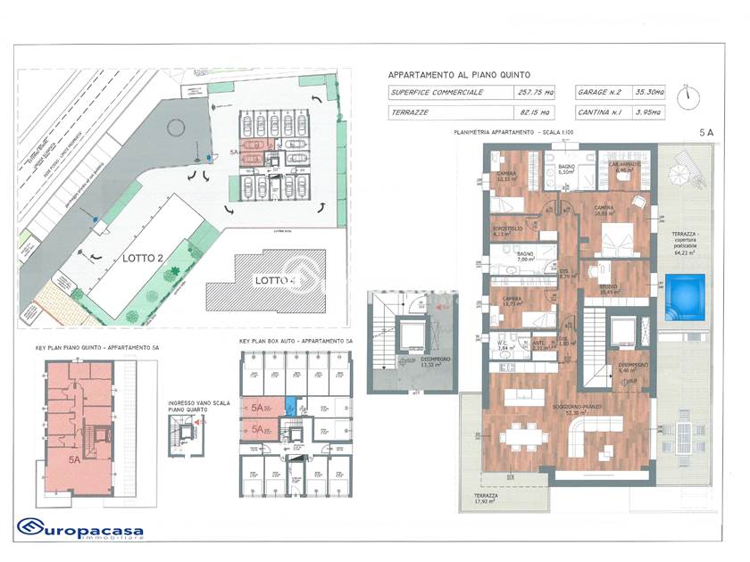
RESIDENCE “ARDEIDE” – San Donà di Piave
SUPER ATTICO-
Scopri un nuovo modo di vivere la casa.
Il Residence Ardeide è il progetto pensato per chi desidera comfort, modernità e una qualità abitativa superiore.

Situato in una delle zone più apprezzate e comode della città, il residence gode di una posizione strategica, a due passi dal centro e vicino a tutti i principali servizi.
Appartamenti Due Camere e super attico
In un edificio elegante e contemporaneo, composto da sole 12 unità distribuite su cinque piani, proponiamo un appartamento dal design funzionale e ricercato, ideale per chi cerca spazi intelligenti e ben organizzati.

Composizione:

Ingresso accogliente

Ampia zona living Generosa con cucina a vista

Camera matrimoniale di generose dimensioni

Camera Doppia

Camera Doppia

Camera Piccola

Bagno padronale

Bagno Secondario generoso

Disimpegno zona notte

Ripostiglio
Splendido terrazzo perimetrale di 50 mq, perfetto per godersi l’esterno in ogni stagione

Efficienza energetica e comfort

L’edificio è progettato secondo i più avanzati standard energetici:

sistemi di riscaldamento e raffrescamento ad alta efficienza

impianti fotovoltaici

soluzioni costruttive orientate al risparmio energetico e al massimo benessere abitativo

Garage al piano terra incluso nel prezzo.
Disponibilità di posto auto.

🔑 Un’opportunità da non perdere!

Contattaci per informazioni o per prenotare una visita:

📍 Agenzia Europacasa Immobiliare
Via Risorgimento, 30 – San Donà di Piave
☎️ 0421 631069 – 334 6961277
Cookie preference